затвори
 - 
English
 - 
en
French
 - 
fr
German
 - 
de
Russian
 - 
ru
Turkish
 - 
tr
Bulgarian
 - 
bg

26 Години

Инвестираме в
изграждането на модерни
и нискоенергийни сгради.

0897 982 216 mait_eood@mail.bg

Жилищна сграда Zornitsa 1

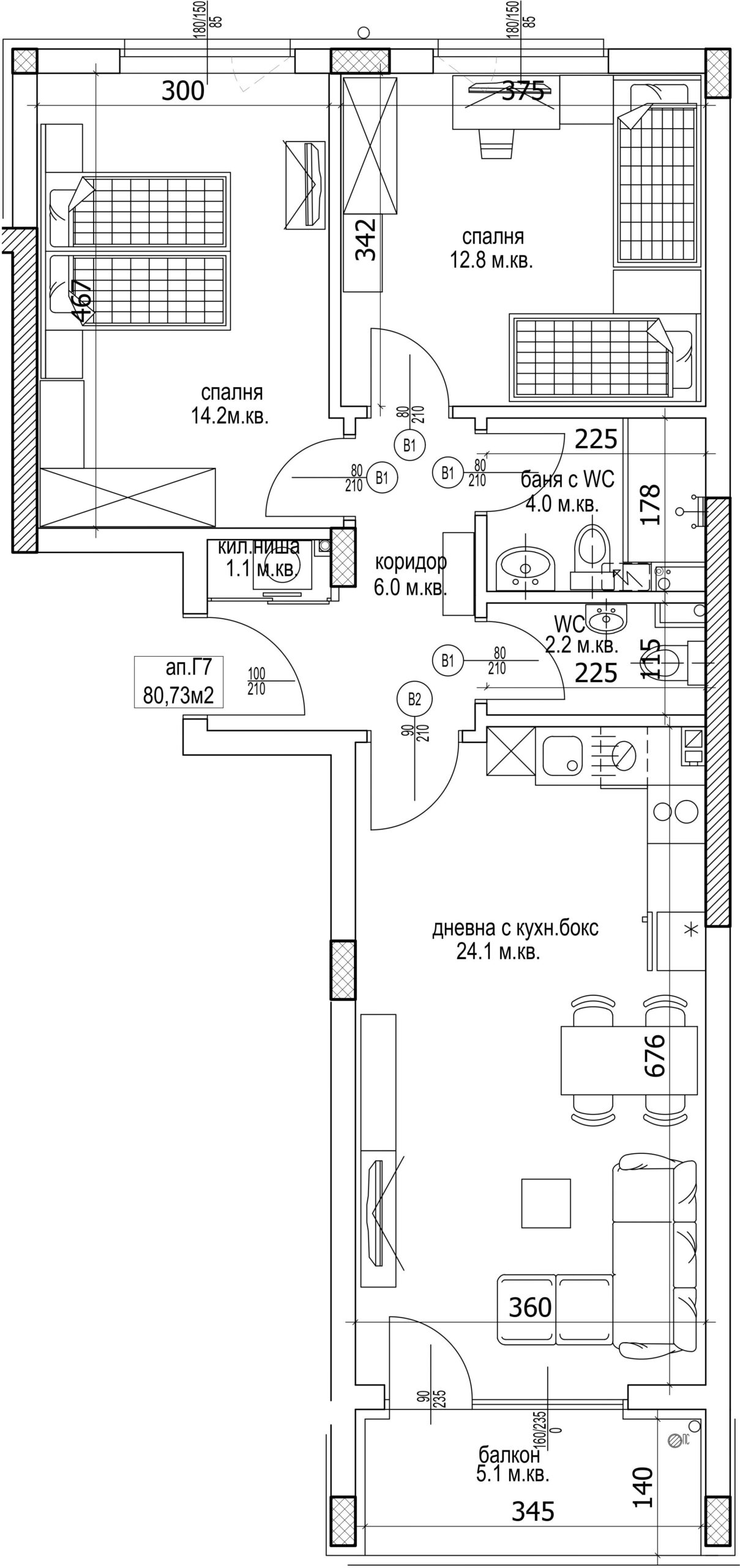
Етаж 3 / Г - 7
Г-7
Тип Тристаен
Чиста площ 80.73 м2
Обща площ 95.69 м2
Етаж 3
Изложение: Юг-Север
Статус: Свободен

Описание

Апартамент – дневна с кухненски бокс, 2 спални, баня с тоалетна, тоалетна, килер, коридор и балкон.

Zornitsa 1
Жилищна сграда Zornitsa 1

Zornitsa 1 – динамична визия и съвременен комфорт

Зорница 1 впечатлява с модерна архитектура и ясно подчертан градски характер. Със своите пет входа тя предлага разнообразие от жилища, обединени в хармонична композиция.

Балансът между функционалност и естетика създава усещане за простор и удобство, а правилно ориентираните апартаменти гарантират отлична осветеност и комфорт през всички сезони.

4 Търговски обект Търговски обект
184 Закрито Паркомясто
124 Двустаен Апартамент
32 Открито Паркомясто
49 Тристаен Апартамент
16 Четиристаен Апартамент
Zornitsa 1

ФАСАДА

Фасадата на сградата е изградена с комбинация от модерни материали, които осигуряват енергийна ефективност и устойчивост. Контрастът между топли и неутрални тонове създава естетически баланс, а широките балкони и големите прозорци осигуряват максимална светлина във всеки апартамент.

Конструкцията

Зорница 1 е изградена по съвременни инженерни стандарти с армирани бетонни елементи и надеждна изолационна система. Конструкцията гарантира стабилност, дълготрайност и защита при всякакви климатични условия.

Общите части

Входовете и коридорите са проектирани с мисъл за удобството на обитателите – просторни стълбища, добре осветени зони и използвани висококачествени материали. Общите части носят усещане за завършеност и създават комфортна жилищна среда.

АСАНСЬОР

Всеки вход разполага със съвременен асансьор, който осигурява лесен и безшумен достъп до всички етажи, включително подземните гаражи. Това гарантира удобство както за семейства с деца, така и за хора с намалена подвижност.

Покрив

Покривът на сградата е плосък и изпълнен с висок клас хидро- и топлоизолация, отговарящ на актуалните енергийни стандарти. Решението осигурява защита и ефективност през цялата година.

ВИК

ВиК инсталацията е изградена от материали с доказано качество, които гарантират надеждност и оптимално налягане във всеки момент. Системата е проектирана така, че да осигурява лесна поддръжка и дългосрочна издръжливост.

Ел. инсталация

Сградата е оборудвана с модерни електроинсталации и предвидена възможност за интегриране на „умен дом“ решения. Всички апартаменти разполагат с достатъчно точки за захранване и сигурни ел. табла, отговарящи на най-новите стандарти.

Подземен паркинг

На разположение на собствениците е подземен паркинг с гаражи и паркоместа, достъпни директно чрез асансьорите на сградата.

Свободни Имоти в жилищна сграда Zornitsa 1

Тук можете да видите всички апартаменти в Жилищна сграда Zornitsa 1, можете да търсите като филтрирате по категории, да ги добавяте в любими както и да кликнете въху апартамента за подробна информация.

Къде се намира Zornitsa 1 ?

гр. Варна, Бул. Цар Освободител

+359 883 902 244

mait_eood@abv.bg

Варна 9000, ул.Лиляна Ставрева №6

Жилищна сграда Zornitsa 1

гр. Варна, Бул. Цар Освободител
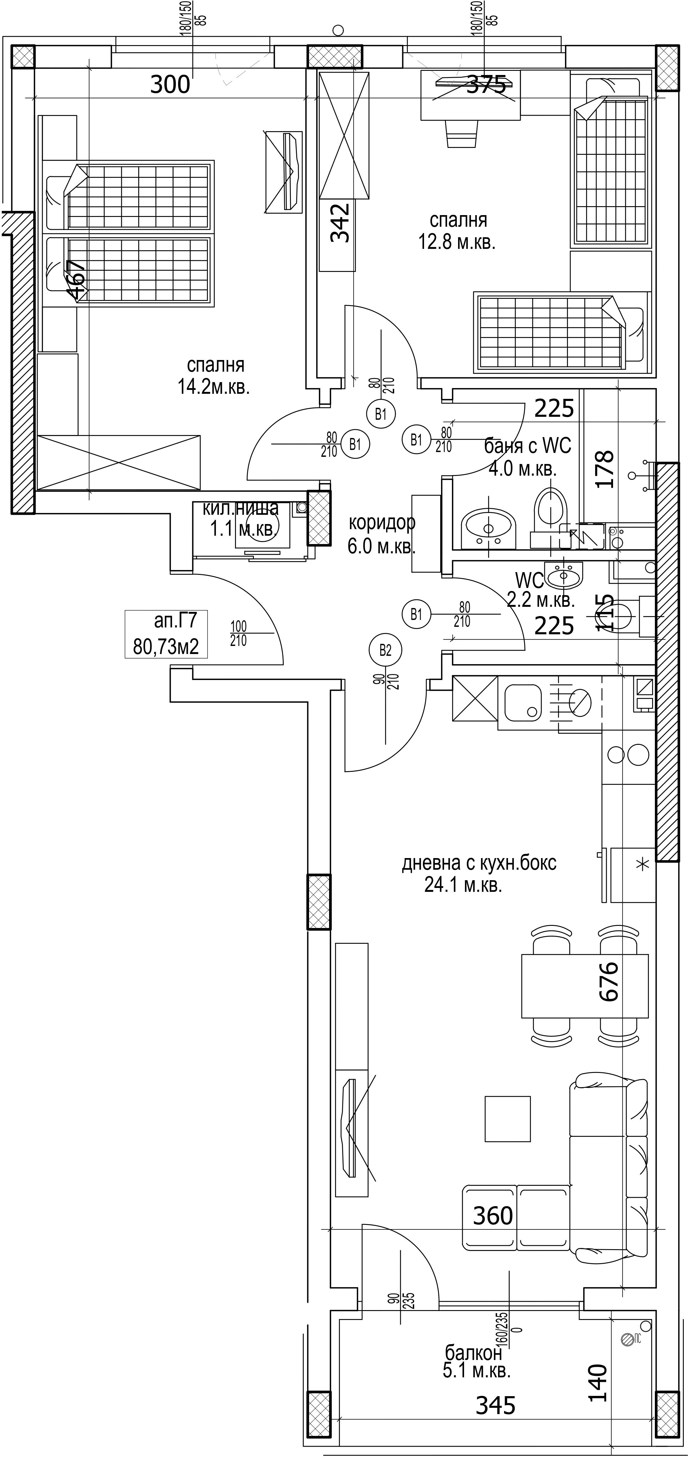
Г - 7
Тип Тристаен
Чиста площ 80.73 м2
Обща площ 95.69 м2
Етаж 3
Изложение: Юг-Север
Статус: Свободен

Описание

Апартамент – дневна с кухненски бокс, 2 спални, баня с тоалетна, тоалетна, килер, коридор и балкон.

Жилищна сграда Zornitsa 1
Изработка и дизайн
Проекти 27
Търсене на имот:
414 имота в
продажба
0897 982 216