затвори
 - 
English
 - 
en
French
 - 
fr
German
 - 
de
Russian
 - 
ru
Turkish
 - 
tr
Bulgarian
 - 
bg

26 Години

Инвестираме в
изграждането на модерни
и нискоенергийни сгради.

0897 982 216 mait_eood@mail.bg

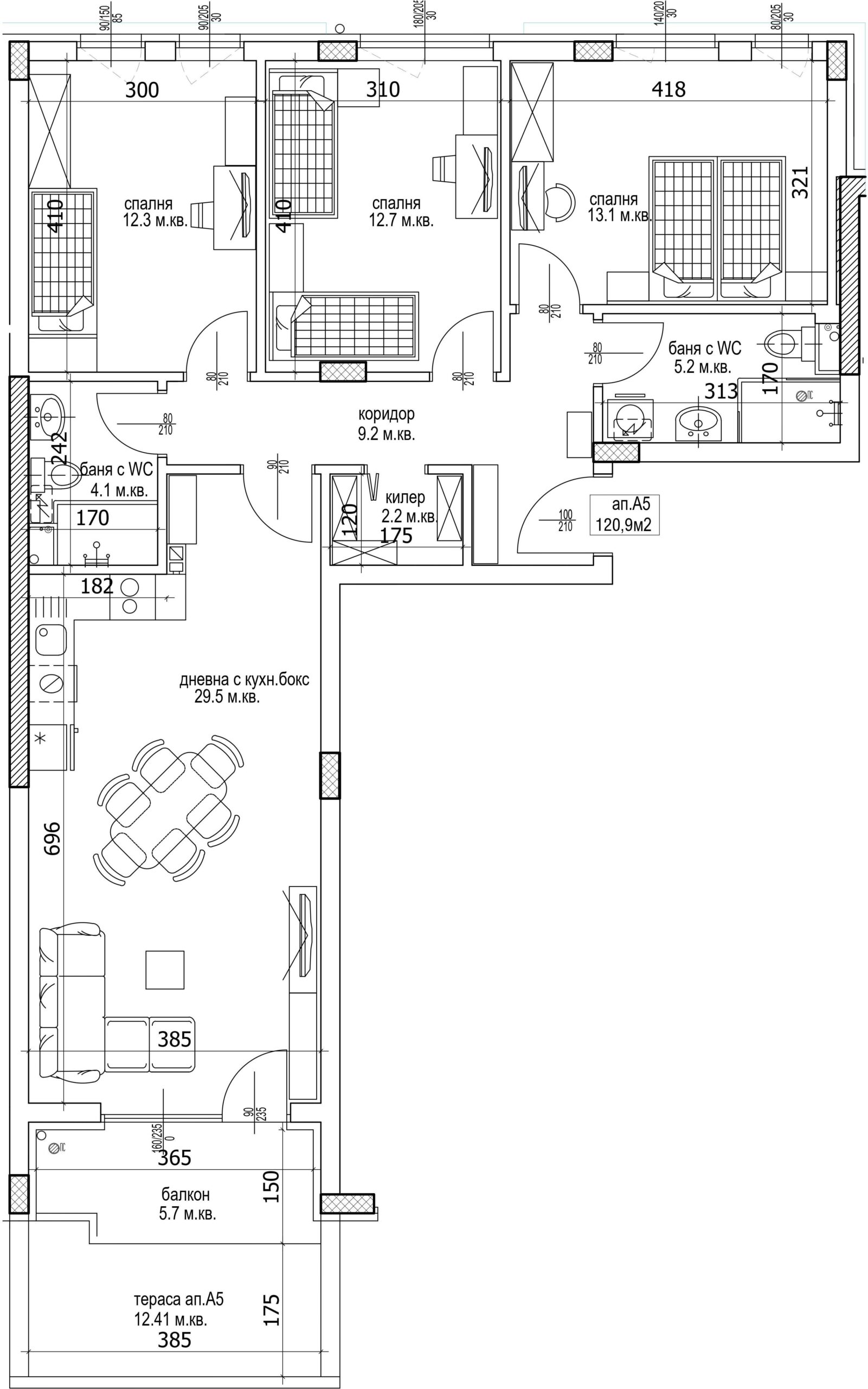
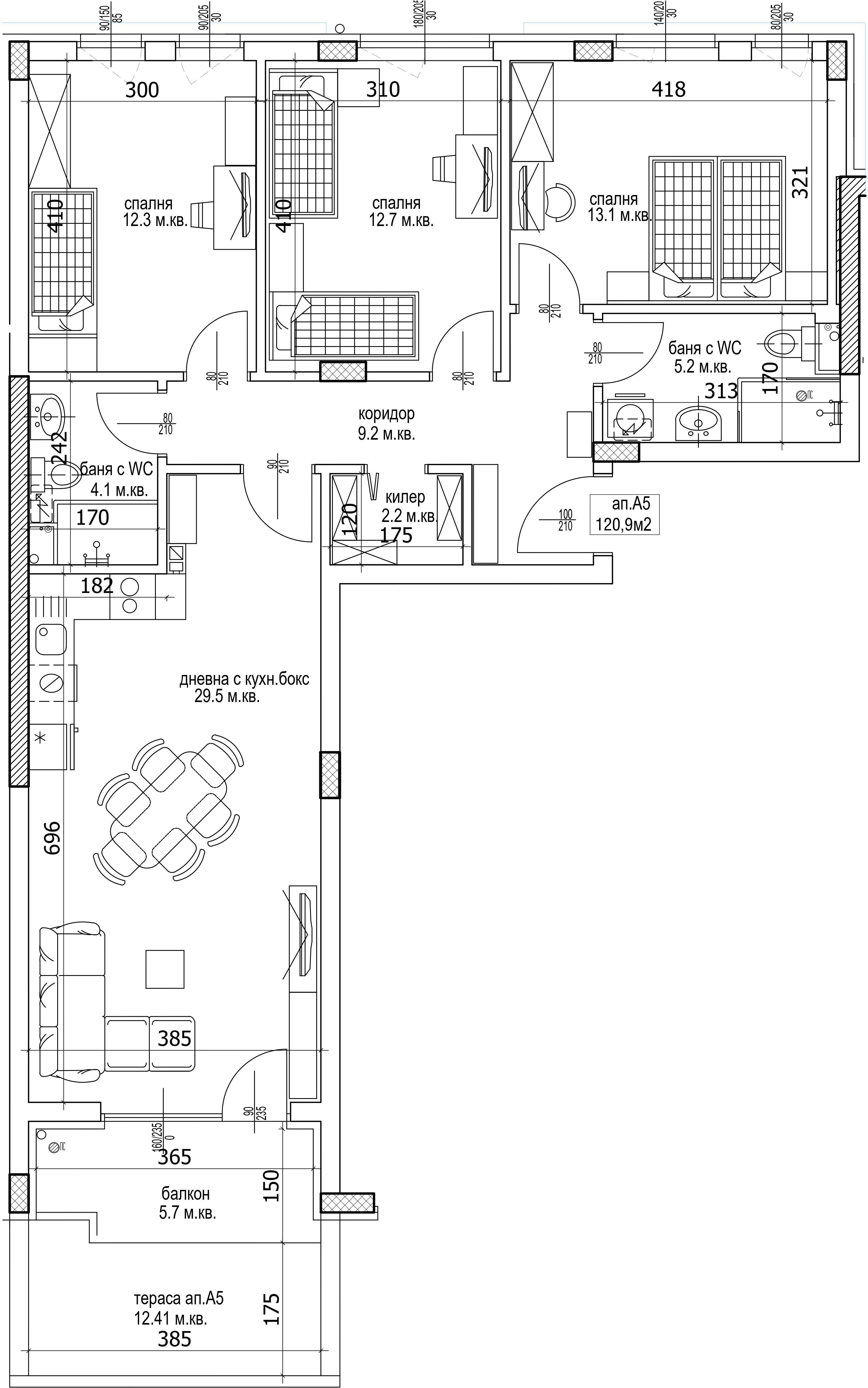
Жилищна сграда Zornitsa 1

Етаж 2 / А - 5
А-5
Тип Четиристаен
Чиста площ 120.90 м2
Обща площ 143.02 м2
Етаж 2
Изложение: Юг-Север
Статус: Свободен

Описание

Апартамент – дневна с кухненски бокс, 3 спални, 2 бани с тоалетна, килер, коридор, балкон и тераса.

Zornitsa 1
Жилищна сграда Zornitsa 1

Zornitsa 1 – динамична визия и съвременен комфорт

Зорница 1 впечатлява с модерна архитектура и ясно подчертан градски характер. Със своите пет входа тя предлага разнообразие от жилища, обединени в хармонична композиция.

Балансът между функционалност и естетика създава усещане за простор и удобство, а правилно ориентираните апартаменти гарантират отлична осветеност и комфорт през всички сезони.

4 Търговски обект Търговски обект
184 Закрито Паркомясто
124 Двустаен Апартамент
32 Открито Паркомясто
49 Тристаен Апартамент
16 Четиристаен Апартамент
Zornitsa 1

ФАСАДА

Фасадата на сградата е изградена с комбинация от модерни материали, които осигуряват енергийна ефективност и устойчивост. Контрастът между топли и неутрални тонове създава естетически баланс, а широките балкони и големите прозорци осигуряват максимална светлина във всеки апартамент.

Конструкцията

Зорница 1 е изградена по съвременни инженерни стандарти с армирани бетонни елементи и надеждна изолационна система. Конструкцията гарантира стабилност, дълготрайност и защита при всякакви климатични условия.

Общите части

Входовете и коридорите са проектирани с мисъл за удобството на обитателите – просторни стълбища, добре осветени зони и използвани висококачествени материали. Общите части носят усещане за завършеност и създават комфортна жилищна среда.

АСАНСЬОР

Всеки вход разполага със съвременен асансьор, който осигурява лесен и безшумен достъп до всички етажи, включително подземните гаражи. Това гарантира удобство както за семейства с деца, така и за хора с намалена подвижност.

Покрив

Покривът на сградата е плосък и изпълнен с висок клас хидро- и топлоизолация, отговарящ на актуалните енергийни стандарти. Решението осигурява защита и ефективност през цялата година.

ВИК

ВиК инсталацията е изградена от материали с доказано качество, които гарантират надеждност и оптимално налягане във всеки момент. Системата е проектирана така, че да осигурява лесна поддръжка и дългосрочна издръжливост.

Ел. инсталация

Сградата е оборудвана с модерни електроинсталации и предвидена възможност за интегриране на „умен дом“ решения. Всички апартаменти разполагат с достатъчно точки за захранване и сигурни ел. табла, отговарящи на най-новите стандарти.

Подземен паркинг

На разположение на собствениците е подземен паркинг с гаражи и паркоместа, достъпни директно чрез асансьорите на сградата.

Свободни Имоти в жилищна сграда Zornitsa 1

Тук можете да видите всички апартаменти в Жилищна сграда Zornitsa 1, можете да търсите като филтрирате по категории, да ги добавяте в любими както и да кликнете въху апартамента за подробна информация.

Тип Подтип Чиста площ Обща площ Етаж Изложение Статус Към имот
Апартамент, Тристаен Д - 9
Д - 9
Апартамент
Тристаен Апартамент
84.58 м2
100.26 м2
Етаж 2
Изток-запад
Свободен
Виж повече
Апартамент, Двустаен Д - 6
Д - 6
Апартамент
Двустаен Апартамент
85.40 м2
100.06 м2
Етаж 2
Изток
Свободен
Виж повече
Апартамент, Двустаен Г - 6
Г - 6
Апартамент
Двустаен Апартамент
67.18 м2
79.63 м2
Етаж 2
Запад-Север
Свободен
Виж повече
Апартамент, Двустаен Г - 5
Г - 5
Апартамент
Двустаен Апартамент
60.74 м2
72.00 м2
Етаж 2
Запад
Свободен
Виж повече
Апартамент, Двустаен Г - 4
Г - 4
Апартамент
Двустаен Апартамент
69.98 м2
82.95 м2
Етаж 2
Запад
Свободен
Виж повече
Апартамент, Двустаен Г - 3
Г - 3
Апартамент
Двустаен Апартамент
76.02 м2
90.06 м2
Етаж 2
Юг
Свободен
Виж повече
Апартамент, Двустаен Г - 2
Г - 2
Апартамент
Двустаен Апартамент
101.41 м2
116.07 м2
Етаж 2
Юг
Свободен
Виж повече
Апартамент, Тристаен Г - 1
Г - 1
Апартамент
Тристаен Апартамент
104.64 м2
122.48 м2
Етаж 2
Юг-Север
Свободен
Виж повече
Апартамент, Двустаен В - 3
В - 3
Апартамент
Двустаен Апартамент
102.52 м2
117.23 м2
Етаж 2
Юг
Свободен
Виж повече
Апартамент, Тристаен В - 1
В - 1
Апартамент
Тристаен Апартамент
107.24 м2
125.42 м2
Етаж 2
Юг-Север
Свободен
Виж повече
Апартамент, Четиристаен А - 5
А - 5
Апартамент
Четиристаен Апартамент
120.90 м2
143.02 м2
Етаж 2
Юг-Север
Свободен
Виж повече

Къде се намира Zornitsa 1 ?

гр. Варна, Бул. Цар Освободител

+359 883 902 244

mait_eood@abv.bg

Варна 9000, ул.Лиляна Ставрева №6

Жилищна сграда Zornitsa 1

гр. Варна, Бул. Цар Освободител
А - 5
Тип Четиристаен
Чиста площ 120.90 м2
Обща площ 143.02 м2
Етаж 2
Изложение: Юг-Север
Статус: Свободен

Описание

Апартамент – дневна с кухненски бокс, 3 спални, 2 бани с тоалетна, килер, коридор, балкон и тераса.

Жилищна сграда Zornitsa 1
Изработка и дизайн
Проекти 27
Търсене на имот:
414 имота в
продажба
0897 982 216