затвори
 - 
English
 - 
en
French
 - 
fr
German
 - 
de
Russian
 - 
ru
Turkish
 - 
tr
Bulgarian
 - 
bg

26 Години

Инвестираме в
изграждането на модерни
и нискоенергийни сгради.

0897 982 216 mait_eood@mail.bg
Fusion 1
Жилищна сграда Соната sold sold sold sold sold sold sold sold sold sold sold sold sold sold sold

Свободни Имоти в жилищна сграда Fusion 1

Тук можете да видите всички апартаменти в Жилищна сграда Fusion 1, можете да търсите като филтрирате по категории, да ги добавяте в любими както и да кликнете въху апартамента за подробна информация.

Тип Подтип Чиста площ Обща площ Етаж Изложение Статус Към имот

Перфектното място за градски живот

В близост до „Фюжън“ 1 се намират училища, детски градини, болници и спортни обекти, което прави ежедневието по-лесно и удобно. Районът е изпълнен с магазини, заведения и зелени площи за разходки, предоставяйки пълния комфорт на съвременния живот с достъп до всичко необходимо.

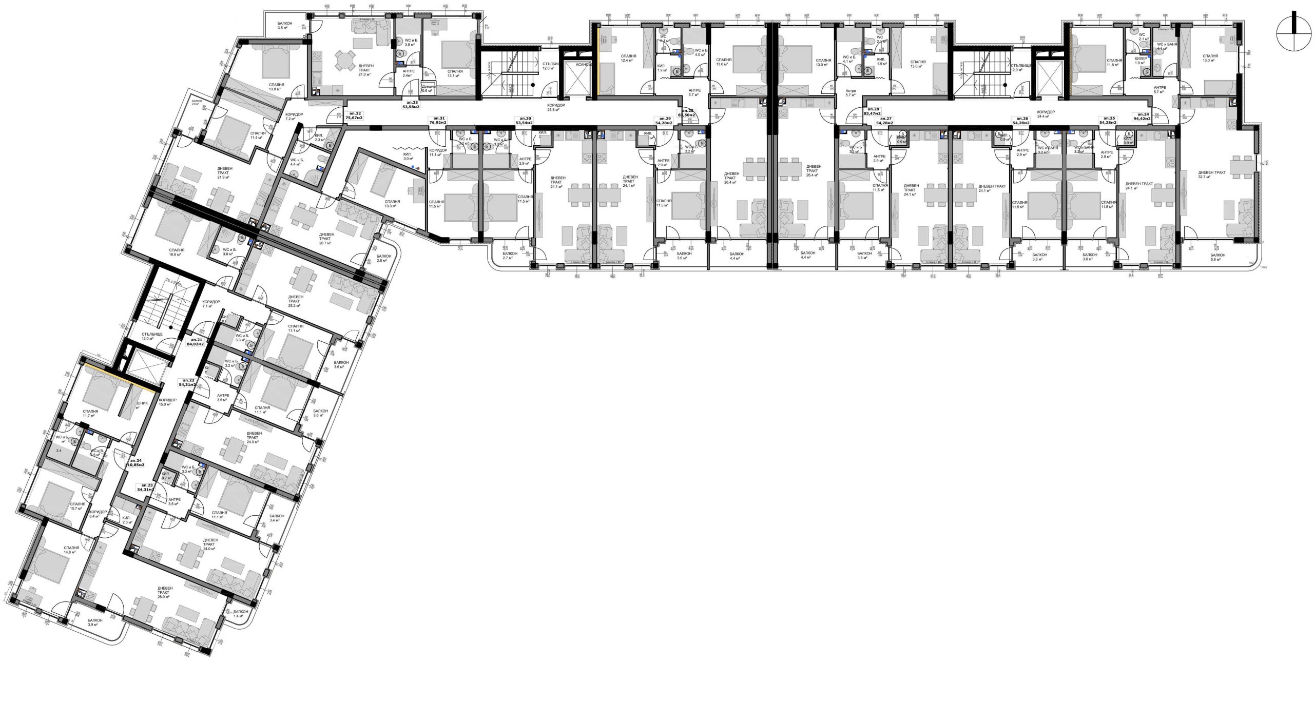
„Фюжън“ 1 предлага различни типове апартаменти – двустайни, тристайни и четиристайни жилища с функционални разпределения, които отговарят на нуждите на всяко домакинство. Сградата е проектирана с внимание към детайлите, като осигурява уют и комфорт за живущите. Висококачествените материали и съвременните технологии, вложени в строителството, гарантират дълготрайност и енергийна ефективност.

8 Закрит Гараж
38 Закрито Паркомясто
71 Открито Паркомясто
60 Двустаен Апартамент
48 Тристаен Апартамент
7 Четиристаен Апартамент
Fusion 1

Модерна фасада

Сградата „Фюжън“ 1 привлича вниманието със съвременен архитектурен стил, който съчетава стъклени и метални елементи, придавайки елегантен и стилен облик. Дизайнът е изчистен и хармоничен, създавайки усещане за светлина и простор.

Просторни и светли помещения

Всеки апартамент в „Фюжън“ 1 е проектиран с внимание към детайла, за да осигури максимален комфорт и уют. Двустайни, тристайни и четиристайни жилища предлагат функционално разпределение, което отговаря на нуждите на модерните семейства.

Висококачествени материали и технологии

В строителството на „Фюжън“ 1 са използвани първокласни материали и съвременни технологии, гарантиращи дълготрайност и енергийна ефективност. Това осигурява ниски разходи за поддръжка и комфорт на обитателите.

Удобства за обитателите

Сградата предлага подземен паркинг, осигуряващ сигурност за автомобилите на живущите. Лесният достъп до транспортни връзки и градски услуги прави „Фюжън“ 1 отличен избор за градски живот.

Свободни Имоти в жилищна сграда Fusion 1

Тук можете да видите всички апартаменти в Жилищна сграда Fusion 1, можете да търсите като филтрирате по категории, да ги добавяте в любими както и да кликнете въху апартамента за подробна информация.

Тип Подтип Чиста площ Обща площ Етаж Изложение Статус Към имот

Къде се намира Fusion 1 ?

гр. Варна, ул. Янко Мустаков
Проекти 27
Търсене на имот:
414 имота в
продажба
0897 982 216